Quadrilocale in vendita

Palermo, Via Montepellegrino - Montepellegrino
€ 265.000
4 locali 4 locali
120 Mq 120 Mq
2 bagni 2 bagni

Quadrilocale in vendita

Palermo, Via Montepellegrino - Montepellegrino

Descrizione annuncio

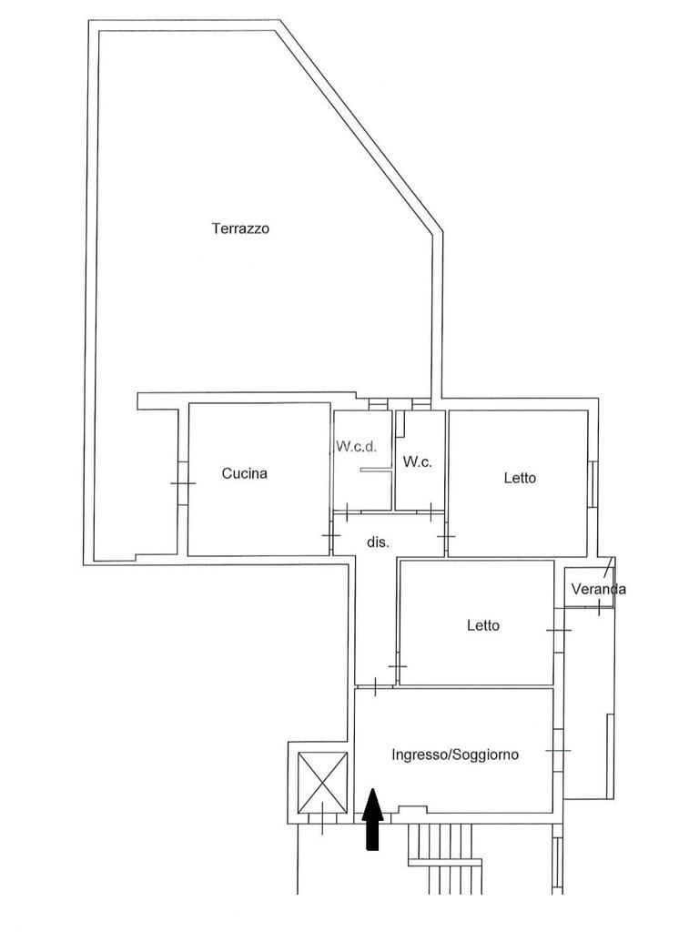
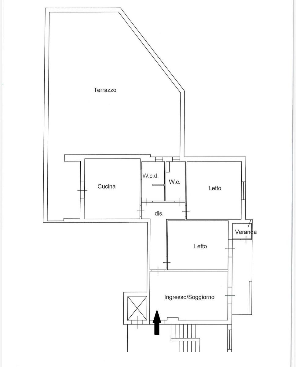
Se cerchi una casa dove lo spazio interno dialoga perfettamente con l'esterno, questa proposta in Via Montepellegrino 72 ti sorprenderà.

Varcando la soglia, si percepisce immediatamente la freschezza della ristrutturazione totale completata nel 2018. Nonostante l’indirizzo indichi il primo piano, l'appartamento si trova in realtà sopra due piani di ammezzati: una posizione che lo eleva dal rumore cittadino, regalandogli la luminosità e il respiro tipici di un piano alto.

La zona giorno è pensata per la convivialità: il soggiorno, ampio e accogliente, si affaccia sul proprio balcone, mentre la cucina abitabile è il vero motore della casa. Proprio dalla cucina si accede a un balcone che fa da ponte verso il vero 'pezzo forte': un terrazzo privato di circa 100 mq. Immagina questo spazio arredato con piante, un grande tavolo per le cene estive o una zona lounge dove rilassarti a fine giornata; un lusso raro nel cuore di una zona così servita.

La zona notte è composta da due camere da letto spaziose e silenziose, servite da due bagni, entrambi finestrati, un dettaglio fondamentale per chi cerca comfort e salubrità.

L'appartamento è un concentrato di tecnologia e sicurezza: il riscaldamento autonomo e gli infissi in PVC coibentanti con zanzariere assicurano un isolamento perfetto e bollette leggere, mentre l'impianto di allarme e il videocitofono garantiscono la massima tranquillità.

A concludere questa soluzione 'chiavi in mano' c'è un vantaggio che fa la differenza: la comodità di un posto auto e moto, che mette fine definitivamente alla ricerca del parcheggio al rientro dal lavoro. Il tutto con la gestione economica di basse spese condominiali.

Questa non è solo una casa pronta da abitare, è la cornice ideale per il tuo prossimo capitolo di vita.

Mostra tutto

Nelle vicinanze

Trasporto pubblico Trasporto pubblico
Fiera
Fiera
400 m
Imperatore Federico
Imperatore Federico
980 m
Notarbartolo
Notarbartolo
1,6 Km
Respighi/Piazza Ziino
Respighi/Piazza Ziino
1,9 Km
Ammiraglio Rizzo - Generale Cascino
Ammiraglio Rizzo - Generale Cascino
410 m
Ricariche auto elettriche Ricariche auto elettriche
EnelX EVA+ Negozio Enel di Palermo
740 m
CONAD SUPERSTORE Palermo Mandalà | EnelX
2,5 Km
ALD Costa CAR SERVICE PALERMO | ENELX
2,8 Km
Scuole Scuole
Istituto tecnico settore tecnologico "Vittorio Emanuele III"
590 m
Liceo Scientifico Statale "Stanislao Cannizzaro"
640 m
Liceo Classico Giuseppe Garibaldi
780 m
scuola media Giuseppe Garibaldi
850 m
Scuola media Dante Alighieri
890 m
Farmacia Farmacia
Farmacia
290 m
Farmacia della Fiera
420 m
Farmacia
580 m
Farmacia Indelicato
580 m
Farmacia Trapani
730 m
Ospedali Ospedali
Radial - Diagnostica per Immagini
590 m
Ospedale Enrico Albanese
1,6 Km
Centro Traumatologico Ortopedico
2,0 Km
Ospedali Villa Sofia Cervello
2,5 Km
Supermercati Supermercati
Decò
90 m
mercato ortofrutticolo
290 m
Mercato alimentare all'apero in via Montalbo
360 m
Fortè discount
400 m
Spazio Alimentare Pago Poco
410 m
Negozi Negozi
Al pane bello
390 m
Panificio
410 m
Pane e pizza
440 m
Dieffemedicali - Medical Store
600 m
Panificio Puccio
600 m
Bar Bar
Esedra
390 m
Bar
410 m
Scatassa
520 m
Querida
590 m
Bar Mario
750 m
Ristoranti Ristoranti
Il Giardino
570 m
Burnìa Ristorante - Pizzeria
640 m
Kuletto's
810 m
Ristorante 131
910 m
Mudù
950 m
Mostra tutto

Caratteristiche

Rif.:
61157896
Piano:
1 di 12 con ascensore (Piano basso)
Posti auto:
1
Balconi:
1
Terrazzi:
1
Camere da letto:
2
Mostra tutto
Prezzo Prezzo
€ 265.000
Rata mutuo Rata mutuo
€ 1.251 / mese
Spese annue Spese annue
€ 50
Proponi il tuo prezzoProponi il tuo prezzo

Classe Energetica

G
G
G
G
G
G
G
G
G
EP globale non rinnovabile:
160.00 kW h/m² anno
EP globale rinnovabile:
160.00 kW h/m² anno
Anno di costruzione:
1980
Riscaldamento:
Autonomo
Tipo impianto:
A radiatori
Tipo alimentazione:
Metano

Ti interessa visionare l'immobile?

Fissa un appuntamento  Fissa un appuntamento

Richiedi informazioni

Clicca su Leggi per aprire l'informativa
* Questi campi sono obbligatori

Calcola il tuo mutuo

Semplice e senza impegno
Anticipo

( % )
Mutuo

( % )

pochi semplici passi

inserisci i tuoi dati
Questionario completato
Grazie per aver richiesto un appuntamento senza impegno con un nostro Consulente del Credito e Assicurativo.

Hai inserito correttamente tutti i dati necessari e a breve riceverai una e-mail con un link da convalidare per inviare i tuoi dati.
Affiliato
Nuovo Studio Fiera Sas
Via Ammiraglio Rizzo, 94 90142 Palermo (PA)

Il nostro staff


  • Valerio Prestigiacomo
    Affiliato
Via Ammiraglio Rizzo, 94 90142 Palermo (PA)
Zona: Montepellegrino-Fiera-Cantieri-Arenella-Vergine Maria
Mostra su mappa
Orari: dal lunedì al venerdì: 09:00 - 13:00 / 15:30 - 20:00. Il sabato: 09:00 - 13:00
Affiliato
Nuovo Studio Fiera Sas
Via Ammiraglio Rizzo, 94 90142 Palermo (PA)

2026 Tecnocasa Franchising S.p.A. - P. IVA 08365160152 - Via Monte Bianco 60/A 20089 Rozzano (MI). Ogni agenzia ha un proprio titolare ed è autonoma. Privacy policy | Policy utilizzo | Cookie policy